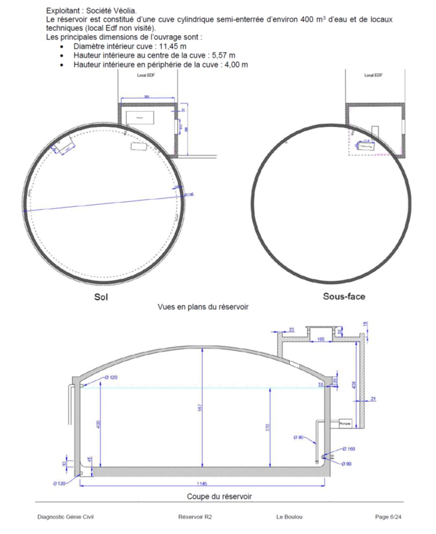
Réhabilitation du réservoir R2 aux Chartreuses du Boulou

Réhabilitation du réservoir R2 de 400 m3 sur l’avenue de d’en Carbouner aux chartreuses du Boulou. Il sert au remplissage du réservoir plus en amont et à la distribution de toutes les maisons entre lui et l’entrée du lotissement. Il est donc essentiel à ce quartier.

Le SIAEP du Vallespir procède en interne à une inspection systématique des 40 ouvrages de stockage à chacun de leur désinfection. Cette vérification permet ensuite d’orienter les priorités en terme de diagnostic complet de structure et d’étanchéité

Un cabinet spécialisé a procédé à un diagnostic en 2024. Il recommande de reprendre les revêtements intérieurs et extérieurs ainsi que la structure. On reprendra aussi l’hydraulique.